Versilia: offerte speciali di Hotel, bed and breakfast, residence, agriturismo e immobili

Villa singola in vendita a Pietrasanta Villa singola in vendita a Pietrasanta Villa singola in vendita a Pietrasanta Villa singola in vendita a Pietrasanta Villa singola in vendita a Pietrasanta Villa singola in vendita a Pietrasanta Villa singola in vendita a Pietrasanta Villa singola in vendita a Pietrasanta Villa singola in vendita a Pietrasanta Villa singola in vendita a Pietrasanta Villa singola in vendita a Pietrasanta Villa singola in vendita a Pietrasanta Villa singola in vendita a Pietrasanta Villa singola in vendita a Pietrasanta Villa singola in vendita a Pietrasanta Villa singola in vendita a Pietrasanta Villa singola in vendita a Pietrasanta Villa singola in vendita a Pietrasanta Villa singola in vendita a Pietrasanta Villa singola in vendita a Pietrasanta Villa singola in vendita a Pietrasanta Villa singola in vendita a Pietrasanta Villa singola in vendita a Pietrasanta Villa singola in vendita a Pietrasanta Villa singola in vendita a Pietrasanta Villa singola in vendita a Pietrasanta Villa singola in vendita a Pietrasanta

Villa singola in vendita a Pietrasanta

€ 1.480.000 - Trattabile | 135mq | 3 bagni | 3 camere
  • Rif: 1392-A
  • Numero Camere: 3
  • Numero Bagni: 3
  • Superficie: 135mq
  • Comune: Pietrasanta
  • Località: Marina di Pietrasanta
  • Giardino: Privato
  • Contratto: Vendita
  • Tipologia: Villa singola
  • Garage / Posto auto: Posto auto
  • Cucina: Angolo cottura
  • P.E. Rinnovabile: 57.66kwh/m2
  • P.E. Non Rinnovabile: 2.06kwh/m2
  • Aria Condizionata: Autonomo
  • Condizione: nuovo
  • Anno di Costruzione: 2018
Più Informazioni

Marina di Pietrasanta Villa singola tutta al piano terra con giardino privato in otti

 Villa singola di recente e ottima ristrutturazione, curata nei minimi dettagli e finemente arredata. Situata in ottimo contesto signorile, molto riservato grazie alla posizione in strada a fondo chiuso. Corredata da ampio giardino con accesso da 2 strade, entrambe con passo carraio e pedonale. L'immobile si sviluppa interamente sul solo piano terra, ed è composto da soggiorno, zona pranzo, cucina, disimpegno, 3 camere, 3 bagni, lavanderia; a corredo un ampio e luminoso pergolato adibito a zona living fruibile tutto l'anno grazie all'installazione di vetrate. La casa può essere acquistata con l'arredo attualmente presente: mobili su misura e accessori alta qualità. Rifinisce l'immobile il giardino, su quattro lati, ben curato e piantumato che ospita una piccola piscina idromassaggio. In classe enegetica A4 , dotato di aria condizionata, impianto fotovoltaico 3Kwt, caldaia ibrida, pompa di calore, 2 robot rasaerba per il giardino, impianto di allarme e videosorveglianza , zanzariere, impianto di irrigazione automatica.
Rif 1392

Prestazione Energetica

 
 
 
 
 
 
 
  • Tipo Riscaldamento: Radiatori
  • Alimentazione Riscaldamento: Metano
  • P.E. Rinnovabile: 57.66kwh/m2
  • P.E. Non Rinnovabile: 2.06kwh/m2
  • Aria Condizionata: Autonomo

PREZZO

€ 1.480.000 - Trattabile

CONDIVIDI ANNUNCIO

Virtual Tour

Virtual Tour

Virtual Tour

Virtual Tour

Virtual Tour

Virtual Tour

Virtual Tour

Virtual Tour

Virtual Tour

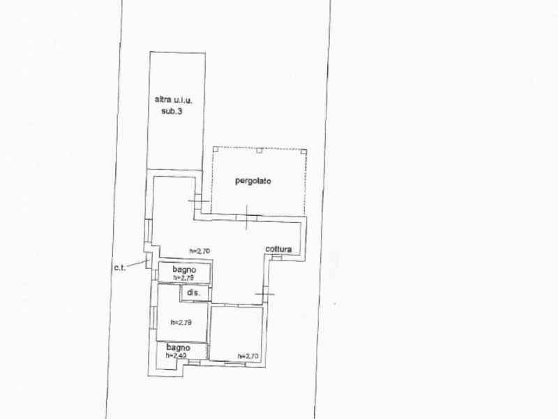
Planimetrie

planimetria - Villa singola in vendita a Pietrasanta

Mappa

Mare: 760m
Centro: 760m
Agenzia Immobiliare Le Ville: Via Carducci, 121 55041 Marina di Pietrasanta

ALTRI ANNUNCI SIMILI A QUESTO

  • vendita
    marina-di-pietrasanta-fiumetto-vendita-villa-4-camere-4-bagni-giardino-e-pauto-ri
    Marina di Pietrasanta
    € 690.000
    SV3690 - Marina di Pietrasanta, Fiumetto, vendita di villa in bifamiliare ubicata a mt. 800 dal mare, ottimo stato manutenzione, corredata da p. auto e spazio attrezzato per biciclette, giardino, resede...
  • vendita
    pietrasanta-versilia-riviera-affitto-a-riscatto-rent-to-buy-villa-singola-3-camere
    Pietrasanta
    € 815.000
    SV153 - Versilia, Pietrasanta, a 1000 mt dalla piazza del Duomo, complesso residenziale di nuova costruzione ubicato alle porte della cittadina ed a 3,5 km dal mare. Lotto n.4- graziosa villa singola...
  • vendita
    pietrasanta-versilia-villa-singola-con-piscina-3-camere-3-bagni-vendita-in-esclusi
    Pietrasanta
    € 1.300.000
    SV03 - A pochi passi dal centro di Pietrasanta bella villa singola con piscina in vendita in esclusiva. Corredata da giardino e p. auto e allestita con allarme, aria condizionata. La villa è composta da...
  • vendita
    pietrasanta-colline-vendita-villa-vista-mare-con-piscina-rif-sv142
    Pietrasanta
    Trat. in agenzia
    SV142 - Pietrasanta colline vendita. Bella villa vista mare con piscina. Deliziosa cornice nella natura con piante di olivo secolari. Strutturata su due livelli è contornata da giardino a terrazze molto...
  • vendita
    villetta-singola-vista-mare
    Strettoia
    € 415.000
    452 MBC - Nel comune di Pietrasanta, località Strettoia, in primissima collina e raggiungibile tramite strada privata, villetta singola in buone condizioni manutentive, disposta interamente a piano terra; al...

Questa scheda immobile è stata vista 152 volte

LaVersilia.it - Il portale della Versilia - Area riservata - Privacy policy - Cookie policy - Modifica preferenze cookies
Realizzazione sito web by SIT | P.IVA: 01700260464