Versilia: offerte speciali di Hotel, bed and breakfast, residence, agriturismo e immobili

Villa singola in vendita a Pietrasanta Villa singola in vendita a Pietrasanta Villa singola in vendita a Pietrasanta Villa singola in vendita a Pietrasanta Villa singola in vendita a Pietrasanta Villa singola in vendita a Pietrasanta Villa singola in vendita a Pietrasanta Villa singola in vendita a Pietrasanta Villa singola in vendita a Pietrasanta Villa singola in vendita a Pietrasanta Villa singola in vendita a Pietrasanta Villa singola in vendita a Pietrasanta Villa singola in vendita a Pietrasanta Villa singola in vendita a Pietrasanta Villa singola in vendita a Pietrasanta Villa singola in vendita a Pietrasanta Villa singola in vendita a Pietrasanta Villa singola in vendita a Pietrasanta

Villa singola in vendita a Pietrasanta

€ 1.480.000 - Trattabile | 135mq | 3 bagni | 3 camere
  • Rif: 1392
  • Numero Camere: 3
  • Numero Bagni: 3
  • Superficie: 135mq
  • Comune: Pietrasanta
  • Località: Marina di Pietrasanta
  • Giardino: Privato
  • Contratto: Vendita
  • Tipologia: Villa singola
  • Garage / Posto auto: Posto auto
  • Cucina: Angolo cottura
  • P.E. Rinnovabile: 57.66kwh/m2
  • P.E. Non Rinnovabile: 2.06kwh/m2
  • Aria Condizionata: Autonomo
  • Condizione: nuovo
  • Anno di Costruzione: 2018
Più Informazioni

Marina di Pietrasanta Villa singola tutta al piano terra con giardino privato in otti

Splendida villa singola recentemente e finemente ristrutturata, curata in ogni minimo dettaglio e caratterizzata da arredi di alta qualità. Inserita in un contesto signorile ed esclusivo, garantisce massima privacy grazie alla posizione in strada a fondo chiuso.
La proprietà è circondata da un ampio giardino privato, accessibile da due ingressi distinti, entrambi dotati di passo carrabile e pedonale, offrendo praticità e comodità.
L’abitazione si sviluppa interamente su un unico livello al piano terra, assicurando funzionalità e comfort abitativo. Gli spazi interni comprendono un luminoso soggiorno, una raffinata zona pranzo, una cucina ben organizzata, disimpegno, tre camere da lettotre bagni e una comoda lavanderia.
A valorizzare ulteriormente la proprietà troviamo un ampio e luminoso pergolato, adibito a zona living, perfettamente fruibile tutto l’anno grazie alla presenza di vetrate, ideale per momenti di relax e convivialità.
La villa può essere acquistata completa degli arredi attualmente presenti, composti da mobili su misura e accessori di alto livello, offrendo una soluzione pronta da abitare.
Il giardino, disposto su quattro lati, è curato e riccamente piantumato e ospita una piccola piscina idromassaggio, perfetta per godere di momenti di benessere in totale riservatezza.
L’immobile è in classe energetica A4 ed è dotato di impianti e tecnologie di ultima generazione, tra cui: aria condizionataimpianto fotovoltaico da 3 kWcaldaia ibridapompa di caloredue robot rasaerbaimpianto di allarme e videosorveglianzazanzariere e impianto di irrigazione automatica.

Prestazione Energetica

 
 
 
 
 
 
 
  • Tipo Riscaldamento: Radiatori
  • Alimentazione Riscaldamento: Metano
  • P.E. Rinnovabile: 57.66kwh/m2
  • P.E. Non Rinnovabile: 2.06kwh/m2
  • Aria Condizionata: Autonomo

PREZZO

€ 1.480.000 - Trattabile

CONDIVIDI ANNUNCIO

Virtual Tour

Virtual Tour

Virtual Tour

Virtual Tour

Virtual Tour

Virtual Tour

Virtual Tour

Virtual Tour

Virtual Tour

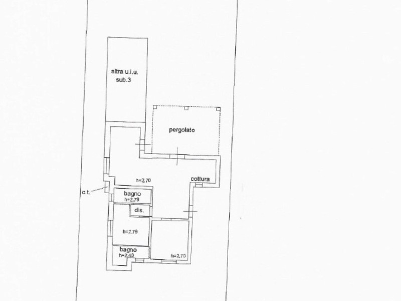
Planimetrie

planimetria - Villa singola in vendita a Pietrasanta

Mappa

Mare: 760m
Centro: 760m
Agenzia Immobiliare Le Ville: Via Carducci, 121 55041 Marina di Pietrasanta

ALTRI ANNUNCI SIMILI A QUESTO

  • vendita
    pietrasanta-versilia-villa-singola-con-piscina-3-camere-3-bagni-vendita-in-esclusi
    Pietrasanta
    € 1.300.000
    SV03 - A pochi passi dal centro di Pietrasanta bella villa singola con piscina in vendita in esclusiva. Corredata da giardino e p. auto e allestita con allarme, aria condizionata. La villa è composta da...
  • vendita
    villa-importante-in-bel-contesto
    Pietrasanta
    € 1.350.000
    442 AS - In una delle location più belle di Pietrasanta, in zona tranquilla e riservata, bella villa singola di recente costruzione ideale anche per due nuclei familiari, su tre livelli abitativi, è...
  • vendita
    villetta-singola-vista-mare
    Strettoia
    € 370.000
    452 MBC - Nel comune di Pietrasanta, località Strettoia, in primissima collina e raggiungibile tramite strada privata, villetta singola in buone condizioni manutentive, disposta interamente a piano terra; al...
  • vendita
    crociale
    Pietrasanta
    Trat. in agenzia
    P058 - VILLA SINGOLA NUOVA CON BELLISSIMO GIARDINO E CASETTA GIOCO SULL'ALBERO. PIANO TERRA ABBIAMO: SOGGIORNO, CUCINA, SALA PRANZO, LAVANDERIA E STANZA ARMADI,BAGNO, BELLISSIME SCALE A VISTA E BALLATOIO...
  • vendita
    marina-di-pietrasanta-in-vendita-villa-singola-con-piscina-privata-rif-085
    Marina di Pietrasanta
    Trat. in agenzia
    085 - In posizione riservata e tranquilla, a circa 1.500 metri dal mare, proponiamo in vendita una raffinata villa singola, completamente libera su quattro lati e impreziosita da una splendida piscina...

Questa scheda immobile è stata vista 192 volte

LaVersilia.it - Il portale della Versilia - Area riservata - Privacy policy - Cookie policy - Modifica preferenze cookies
Realizzazione sito web by SIT | P.IVA: 01700260464