Versilia: offerte speciali di Hotel, bed and breakfast, residence, agriturismo e immobili

Terreno in vendita a Pietrasanta Terreno in vendita a Pietrasanta Terreno in vendita a Pietrasanta Terreno in vendita a Pietrasanta Terreno in vendita a Pietrasanta Terreno in vendita a Pietrasanta Terreno in vendita a Pietrasanta Terreno in vendita a Pietrasanta Terreno in vendita a Pietrasanta Terreno in vendita a Pietrasanta Terreno in vendita a Pietrasanta Terreno in vendita a Pietrasanta

Terreno in vendita a Pietrasanta

€ 190.000 | 0mq | 0 bagni | 0 camere
  • Rif: 506
  • Comune: Pietrasanta
  • Località: PIETRASANTA
  • Giardino: Privato
  • Contratto: Vendita
  • Tipologia: Terreno
  • Garage / Posto auto: Posto auto
Più Informazioni

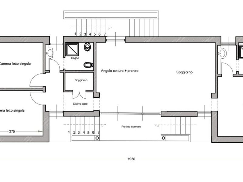
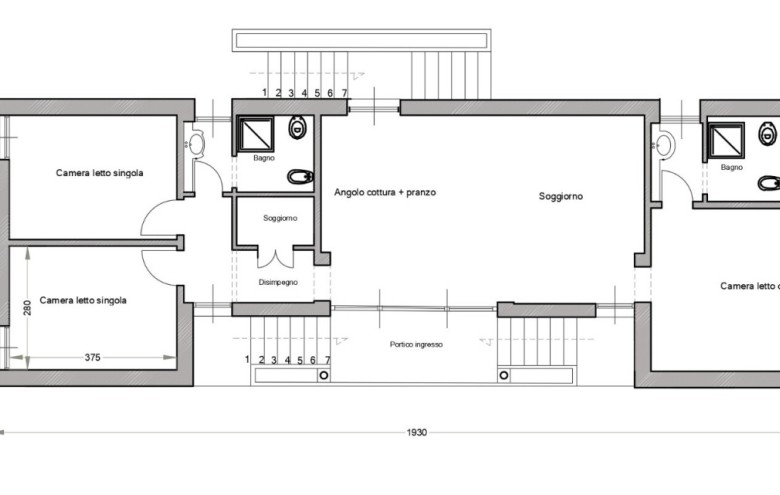
TERRENO EDIFICABILE IN VENDITA A PIETRASANTA

NOSTRA ESCLUSIVA PIETRASANTA: appena fuori dal centro storico, a 900 metri dalla piazza del Municipio e 4,5km dal mare vendesi terreno edificabile con progetto per la costruzione di una casa singola di 107 mq lordi. Il terreno presenta una forma rettangolare regolare (16,00 m x 41,00 m), morfologia pianeggiante e accesso da tramite viabilità privata. L'analisi del progetto in pianta evidenzia l'ottima fattibilità di una villa singola di circa 107 mq lordi, sviluppata longitudinalmente (19,30 m x 6,50 m). Tale soluzione architettonica appare efficace poiché: Garantisce il rispetto delle distanze dai confini nonostante la larghezza contenuta del lotto. Prevede una distribuzione funzionale con ampia zona giorno centrale, due ali dedicate alla zona notte (3 camere totali) e doppi servizi. Valorizza gli spazi esterni attraverso porticati d'ingresso e di soggiorno che integrano il fabbricato nel giardino circostante. Superficie terreno 656mq.
Richiesta € 190.000,00 

Prestazione Energetica

PREZZO

€ 190.000

CONDIVIDI ANNUNCIO

Planimetrie

planimetria - Terreno in vendita a Pietrasanta

Mappa

Mare: 4500m
Agenzia Immobiliare Tesconi: Via Roma, 85 55045 Marina di Pietrasanta

ALTRI ANNUNCI SIMILI A QUESTO

  • vendita
    terreno-edificabile-in-pietrasanta-zona-strettoia
    Strettoia
    € 220.000
    P852 - VENDESI TERRENO DI 1250MQ EDIFICABILE 207MQ SU TRE LIVELLI COMPOSTA DA: PIANO TERRA , CUCINA GRANDE,SALA TINELLO, SALA SOGGIORNO, 2 BAGNI, PERGOLATO, PORTICATO COPERTO. PIANO PRIMO, 4 CAMERE,2 BAGNI,...
  • vendita
    terreno-edificabile-di-circa-3000-mq-con-permesso-approvato-per-la-realizzazione-di
    Marina di Pietrasanta
    € 550.000
    108 Mb - Terreno edificabile di 3. 000 mq con permesso approvato per la realizzazione di 2 ville in bifamiliare a marina di pietrasanta1. 8 km dal mare, alle spalle del parco della versiliana.
  • vendita
    vista-mare
    Strettoia
    € 280.000
    Stre 13 - Pietrasanta , vista mare vendesi terreno con manufatto , il progetto prevede una bifamiliare di 110 mq a unità, o una mono familiare di 220mq. Lotto 1000mq. 
  • vendita
    area-edificabile-in-vendita-a-marina-di-pietrasanta-zona-motrone
    Marina di Pietrasanta
    € 1.000.000
    500 - MARINA DI PIETRASANTA – A 1 km dal mare, lotto di terreno di 4.298 mq con la possibilità di edificare sei unità immobiliari, ciascuna con una superficie di 98 mq. Ottima opportunità per chi...
  • vendita
    querceta
    Pietrasanta
    € 100.000
    P 13 - Vendesi 3000mq di terreno agricolo , tutto recintato con pozzo funzionante e rimessaggio condonato 

Questa scheda immobile è stata vista 173 volte

LaVersilia.it - Il portale della Versilia - Area riservata - Privacy policy - Cookie policy - Modifica preferenze cookies
Realizzazione sito web by SIT | P.IVA: 01700260464